4051 Jackson Luxury Condos

Welcome to the website about a New 15-unit condominium complex, designed by Dmitriy Kazakov, lead architect and CEO of KDI International.

The project is going through entitlement process seeking administrative site plan review and tentative tract map review.

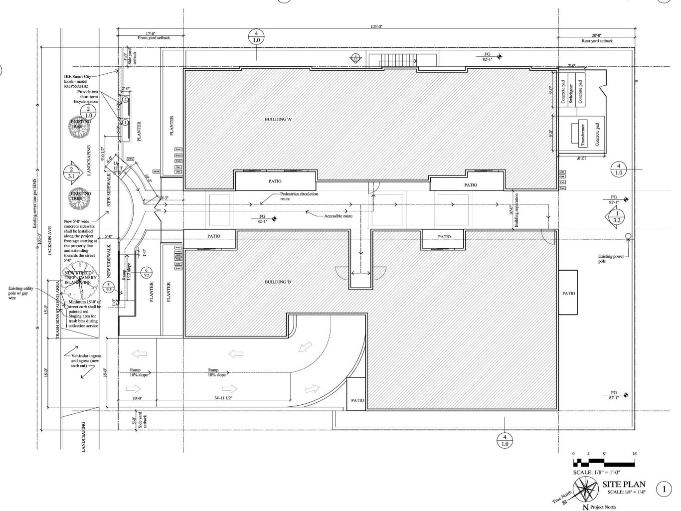
Project Zoning - RMD

 Building Height - 42'-6 1/2"

Setbacks: Front yard - 17'-0", rear yard - 20'-0" (plus additional 10'-0" on 2nd floor), side yards - 5'-0"

It constists of 13 two-bedroom units and

2 one-berdoom units

It has two subterranian parking Garages:

Garage 1 - 17 parking spaces (1 accessible and 1 guest accessible)

Garage 2 - 15 parking spaces (1 guest accessible)

 

Embrace Modern Living

Located in a prime area of Culver City, CA, our 15-unit condominium complex offers:
- Innovative architectural design
- Spacious interiors with modern finishes
- Convenient access to local amenities and public transport

Prime Location

Situated in a vibrant neighborhood with easy access to shops, parks, and dining options.

Modern Amenities

Enjoy a range of amenities, including fitness areas and community spaces.

Secure Parking

Offering two levels of underground parking for residents' convenience.

I hereby agree that this data will be stored and processed for the purpose of establishing contact. I am aware that I can revoke my consent at any time.*

*Please fill in all the required fields.
Message was successfully sent

Get in touch

Telephone: 310 441-7710

E-mail: dmitriy@kazakovdesign.com

Address:

©Copyright. All rights reserved.

We need your consent to load the translations

We use a third-party service to translate the website content that may collect data about your activity. Please review the details in the privacy policy and accept the service to view the translations.